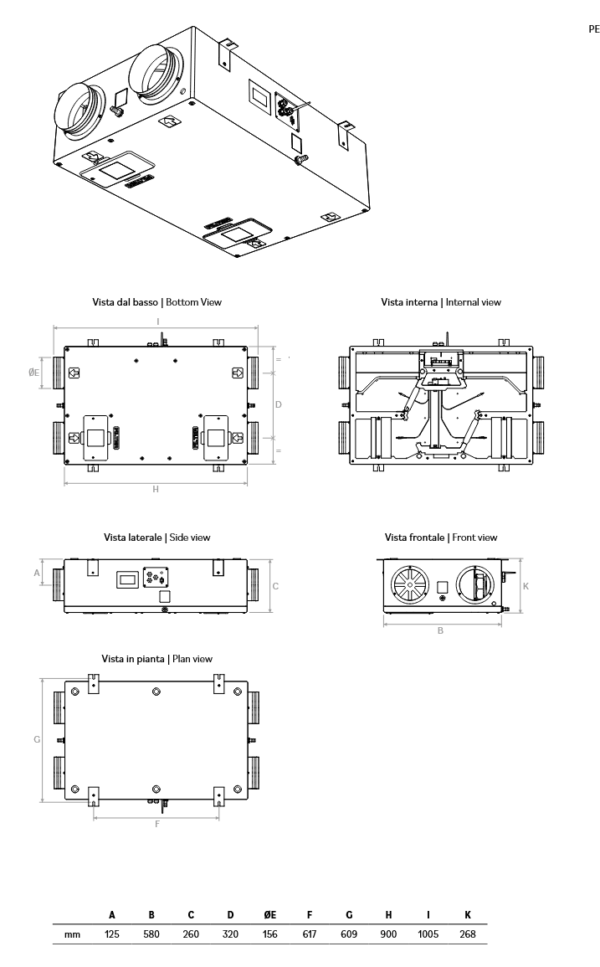
Unità di recupero domestica centralizzata 180 mc/h

Recuperatore di calore:
in controcorrente interamente realizzato in materiale
plastico.

Struttura:
autoportante in PPE a tenuta completa di sistema estrazione filtri e
drenaggio condensa.

Ventilatori:
plug fan con motore EC Brushless a semplice aspirazione.

Filtri:
le unità sono provviste di serie con celle filtranti ondulate in fibra sintetica
classe G4, in opzione filtro efficienza F7 su aria esterna

Categoria:

Dati e Listino

 

 

Modello Descrizione Prezzo
RDCD25SK   1.810,10 €
RDCD25SKI Versione completa di ionizzatore IONIC 2.392,20 €
RDCD25SKBE Versione con batteria elettrica interna all'unità 2.082,49 €
KFTR060A Kit filtri ricambio (2 pz) efficienza G4 52,20 €
FTRLET483 Filtro ricambio efficienza F7 57,10 €

 

Documentazione

Richiedi Informazioni

    Torna in alto